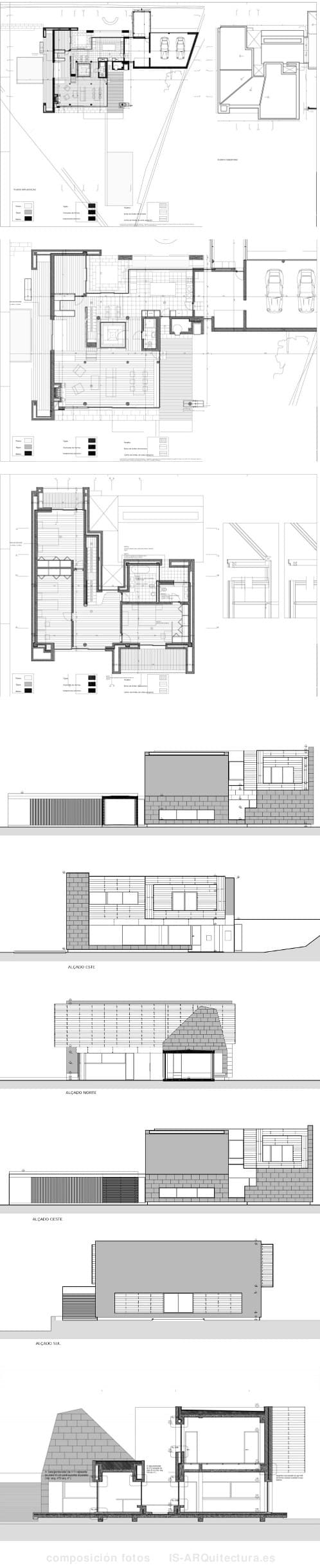
Esta vivienda unifamiliar recibió el nombre de Domus Impluvium, y está situada en las islas Azores (Capelas, isla de S. Miguel). En la memoria del proyecto, su autor escribió lo siguiente:
…el edificio es una re-interpretación del modelo clásico griego y romano de casa, con dos patios, uno para la entrada y otro central, recogiendo las aguas pluviales, dejando que la luz y la ventilación llegue a la zona abierta de planta baja (sala de estar y cocina).»
Luego añade que el volumen de la cocina está tratado como las grandes chimeneas de las casas tradicionales de la isla, al igual que otros aspectos de menor relevancia, y que son muchos. Pero nosotros nos vamos a quedar con el sabor exterior que deja la casa, que no es otro que el de un edificio que aparentemente no tiene ventanas. Sí que las tiene, pero con un diseño poco convencional. A pesar de ello no le falta la luz en su interior.

Encontramos además dos únicos materiales en el exterior: un aplacado de piedra gris y un revestimiento con tablones de madera. Aunque no tengamos apenas imágenes de su interior, hemos podido apreciar la imponente cocina. Es un volumen de paredes inclinadas, que termina con un lucernario. A pesar de haberle puesto a esta casa el nombre de Domus Impluvium, creemos que sus patios pasan algo desapercibidos, y que se alejan bastante del concepto clásico.



La casa Domus Impluvium es un proyecto de Bernardo Rodrigues. Fotos de Fernando Guerra y Sergio Guerra.






Llevaba meses sin poder ver este blog. No se el porque, ya que hago lo que comentasteis y no hay forma, desde esta otra ubicación si que puedo.
Supongo que será cuestión de vuestro servidor, y me ha comentado gente a los q he recomendado esta pagina que tampoco pueden verla.
Supongo que estaréis perdiendo muchas visitar por culpa de eso, ya que este sitio merece mucho la pena.
Un saludo!
Hola. Supongo que te refieres a las recomendaciones que dimos hace poco relativas a cómo borrar la caché, etc… En ese caso, te sugerimos que pruebes con otro navegador y/o que también borres las cookies. Aún así, vamos pedir a nuestro soporte de hosting que investiguen por si hubiera alguna mala configuración en el server. Gracias por la información.