Esta construcción está ubicada en un áspero paisaje de Idaho (EE.UU.). Es la Casa Outpost. Se planteó como residencia y lugar de estudio/taller para mostrar y crear arte. A pesar de lo inhóspito del entorno, esta arquitectura enmarca en cada uno de sus rincones la belleza del paisaje.

A pesar de esa vinculación que mantiene con su entorno, toda la edificación está planteada como una fortaleza. Está protegida por muros de bloques de hormigón, con un jardín lineal que se prolonga desde la casa hacia el sur. A él se accede por un patio intermedio de gravilla. Todo el programa de la vivienda se desarrolla en un único volumen, con un emblemático espacio principal a doble altura sobre el que asoma la planta del dormitorio. La estructura metálica tiene grandes vigas, evitando así apoyos intermedios, mientras que los forjados están hechos con viguería vista de madera.

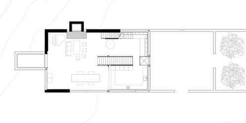
Desde el plano del salón no se ve el dormitorio, pues hay una librería (accesible sólo desde arriba?) que lo oculta. Pero casi todo el espacio dispone de grandes huecos acristalados con vistas espectaculares al desierto, especialmente la cocina y una zona de estar.

Panorámica de la cocina con una elegante pared, entre ésta y la escalera de acceso, llena de armarios. La madera también está presente tanto en el piso como en el revestimiento de las paredes, siendo la zona de estar una de las más acogedoras de toda la casa.

La sobriedad de las fachadas de la Casa Outpost se ve alterada únicamente por los huecos alargados, que forman sencillas composiciones cruzándose los horizontales con los verticales. Las únicas anécdotas al volumen de la casa son la chimenea y el balcón en su lado norte. La planta baja está ocupada por el garaje y pequeñas dependencias vinculadas al patio, con aseo y almacén.







La casa Outpost es un proyecto de Olson Kundig Architects.






Me parece acertada la solución del mueble librero del segundo nivel (altillo), con el cristal que deja ver lo que esta en su interior desde el espacio de doble altura. Sigue con el juego de las costillas del entrepiso y la cubierta que deja las vigas a la vista. Me parece que además de alguna manera ayuda a conservar la claridad entre lo desolado del exterior y el cobijo propio de la arquitectura. La pared cajonera de la cocina tambien, se nota que esta bien pensada. La composición del paisaje del cubo que a traves del patio cerrado perimetralmente se extiende a lo abierto del territorio.
0___
Nico.
Buenos días!.Excelente diseño!,no hay mucha claridad sobre el diseño sostenible,lo demás: el manejo del entorno,el sistema estructural ,está muy bien enfocado.
Arquitecto Fernán Giraldo M.
Cierto Fernán, es una buena arquitectura con muchos materiales reciclables en su construcción, salvo los bloques de hormigón, pero no hay más información si utiliza energías renovables, reciclado de agua, etc… suponemos que no.