
Muchos son los aspectos que le dan carácter a este Ático PPDG ubicado en un edificio de 15 pisos de Guadalajara (México), no solo nos resulta atractivo por su distribución, decoración, mobiliario,… también lo recordaremos como el apartamento del aseo con el suelo de vidrio, ya que el arquitecto supo aprovechar una de las cualidades del edificio para crear un inquietante espacio.
Este ático de un dormitorio cuenta también con acceso directo por un ascensor, pero es precisamente un antiguo hueco de ascensor (que no está en uso) el que le da a la casa un detalle inolvidable: el aseo ofrece una inmejorable perspectiva hacia ese vacío. Para hacer aún más fuerte dicha experiencia, se ha instalado una iluminación especial para que se vea bien qué hay bajo el cristal que uno pisa.


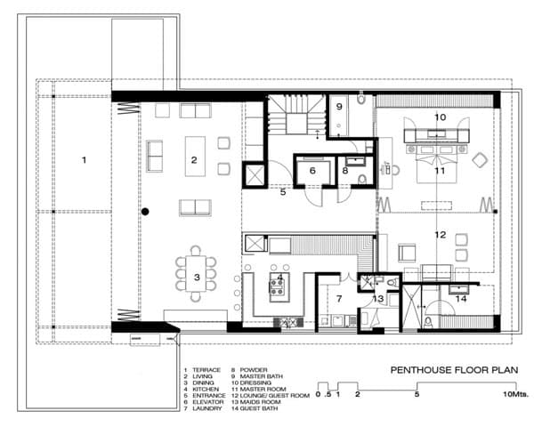
La distribución de este apartamento se ve muy beneficiada por las grandes posibilidades de iluminación y ventilación natural de las que dispone, no solo a través de sus grandes fachadas en cada extremo, sino también por las ventanas de las que dispone en uno de sus laterales, y un hueco horizontal en la parte alta del pasillo. Esta situación permite una organización bastante racional y equilibrada, con un gran salón-comedor frente a la terraza, y otro gran espacio en el lado opuesto para el dormitorio, el cual se puede separar por un tabique plegable de una sala de estar adyacente.
La cocina está abierta hacia el comedor mediante una barra de bar, y organizada con un mueble central en isla. Al otro lado está el lavadero y la habitación para el servicio doméstico (ver plano de planta). El distribuidor central funciona perfectamente, está muy bien dimensionado, con unos acabados en blanco y rojo brillantes en los que están camufladas las puertas.


Este ático es un proyecto de Hernández Silva Arquitectos.
















Ultimamente veo grandes respuestas arquitectonicas a CASI TODOS LOS ESPACIOS!. porque no se tiene un minimo de consideración a los espacios de servidumbre???? el espacio destinado para tal fin en este «MODERNO APARTAMENTO» tiene unas dimensiones no aptas para una persona. Creo que la esclavitud ya no se debe permitir en el S XXI. falta de humanidad o soberbia del diseñador??? debemos saber mirar o mejor aun, debemos aprender a observar porque mirar miramos todos.-
Agreguen a esas grandes e imponentes imagenes, una sola imagen del cuarto de servicio y vean si es digno de una persona ese lugar!!!