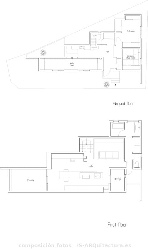
Esta vivienda se construyó en un solar con la forma de un triángulo (164,29m2), en la ciudad japonesa de Shiga. Se la conoce por la Casa de la Reticencia y, como se ve en las fotos, la construcción deja la separación mínima permitida con las casas colindantes. En el lado mayor del triángulo (hipotenusa) la casa se adapta de forma escalonada. De esa manera consigue mantener ángulos rectos en todas las habitaciones, siendo esa la mayor virtud de este proyecto.
Casa de la Reticencia es también la vivienda de la sobriedad, porque tiene lo justo para una familia con hijos. En el momento de escribir este post sólo contaba con una habitación alargada para ellos, pero en realidad es un espacio hecho para poder dividirse en dos. Si te fijas bien verás que ya tiene hasta las dos puertas correderas instaladas.


En la planta baja encontramos el dormitorio de los padres, y la típica habitación japonesa, con diferentes armarios por todos los rincones posibles. Pero no hay pistas de un cuarto de aseo como tal. A la izquierda del hall de entrada, justo antes de entrar en la habitación de los hijos, hay una encimera con un lavabo; el inodoro se encuentra bajo el hueco de la escalera, así que toca subir a la planta alta para darse un baño.

Arriba hay un espacio de muchas paredes con la sala de estar, la cocina, y el comedor. Por un lado hay un patio, y por el extremo opuesto el cuarto de baño, dejando en espacios independientes el inodoro y la bañera. Con esa configuración, podría estar ocupado por tres personas a la vez y conservando la intimidad de cada una. Pero también toda la vivienda cuida bastante las relaciones con el exterior, procurando en todo momento conseguir la máxima privacidad.


La Casa de la Reticencia es un diseño de Kouichi Kimura Architects. Fotos de Takumi Ota.
 
				




