La Residencia Utriai está situada en la ciudad lituana de Utriai. Se construyó en una ladera del valle Minija, para una familia relacionada con el medio rural (huevos y cría de cerdos). La esposa era una estudiante de diseño, muy interesada en la fabricación de muebles. El proyecto debía ser una especie de Arca de Noé, para las pertenencias y animales de sus ocupantes, lejos de la ciudad.
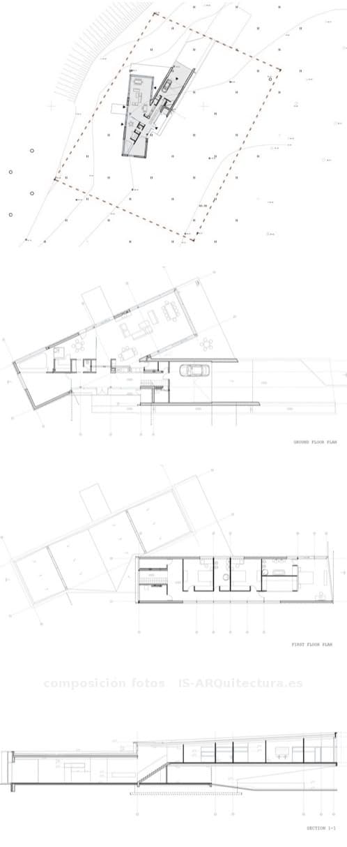
Hecha esta presentación, destaca la imagen exterior del vuelo ‘imposible’ de uno de los dos volúmenes que forman el edificio. Son dos cuerpos combinados con bastante destreza (ver plano de planta baja). Uno de ellos tiene sólo una planta, y aloja un gran salón con el comedor, cocina, aseo, despacho, y sauna con una pequeña piscina interior; el otro cuerpo sirve de protección al garaje para dos vehículos, y contiene los dormitorios. Una de estas habitaciones está tratada como una suite, con cuarto de baño propio y vestidor, ocupando justo el extremo.


Es el segundo volumen el que parece levitar sobre la suave ladera. La parte estructural que hace viable ese voladizo (muros de hormigón armado) se encuentra muy bien camuflada. Eso fue posible gracias a la geometría de su diseño. Viendo la sección longitudinal se entiende mejor esta solución adoptada.

Interior de la Utriai Residence
Dentro de la casa Utriai nos encontramos con muros de hormigón que se han dejado tal cual, sin revestir. Algunas divisiones son de vidrio, así como las puertas, incluida la del aseo (¿donde quedó la intimidad?). Los baños de arriba son también en hormigón visto (pulido?), pero hay que tener en cuenta que la distribución de los sanitarios se ha modificado, según estaba previsto en el plano de planta. El exterior ha quedado con una textura de tablones de madera oscura, donde los grandes huecos acristalados dominan un hermoso paisaje.

Es un proyecto realizado por el estudio de arquitectura G.Natkevicius & Partners. Fotos de R. Urbakavicius.






Felicitaciones al proyectista, ha demostrado que en arquitectura los vuelos son posibles…..
Excelente diseño e inovador.
Felicidades!