Esta construcción es una casa de vacaciones para una pareja de 60 años de edad, pero construida también para usar en cualquier época del año. El edificio fue pensado como una herramienta para ayudar a explorar las cualidades y sensaciones del lugar: una naturaleza circundante de singular belleza.

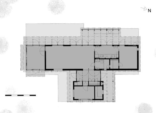
El programa, de una sola planta, está distribuido en varias zonas, cuyo uso dependerá de la época del año y de la climatología. Por eso hay una parte completamente acristalada, pero protegida por una celosía exterior de listones horizontales de madera. Ese mismo tratamiento se ha utilizado en el vuelo de la cubierta, y la marquesina del espacio intermedio que comunica con la habitación adosada al cuerpo longitudinal de la casa.

La Casa de Verano en Trosa es un proyecto de la firma WRB Architects. Esta casa fue el primer proyecto completado por el estudio, incluyendo las obras de construcción. Consiguió llamar la atención de los medios especializado, y recibió varios premios.






