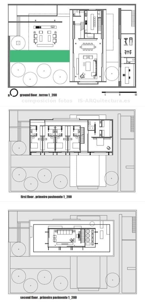
Puede que viendo una casa de este arquitecto brasileño se tenga la sensación de que ya se han visto todas sus obras. Algo de cierto hay en ello, pues Marcio Kogan es del grupo de arquitectos que repite ciertos recursos en cada uno de sus proyectos. El empleo de volúmenes sencillos en los que predomina la horizontalidad; grandes huecos hacia los jardines y piscina, controlados por carpinterías que se pliegan (para los salones); paneles de madera exteriores para los dormitorios. Todos ellos son elementos comunes en la mayoría de sus casas. Y la Casa 6 no se escapa de esta tendencia.

Esta vivienda tiene una alargada piscina (de desafortunado color verdoso) que organiza el jardín. Los muros de piedra presentan un fuerte contraste con los revestimientos neutros monocapa de la casa. La gran superficie del salón preside ese escenario, que puede quedar totalmente abierto hacia él cuando toda la carpintería está plegada. En su cubierta hay también lugar para un jardín de sedum, que se puede contemplar desde algunas habitaciones superiores.
El mobiliario de la Casa 6 ayuda a mantener ese sabor retro que en cierta medida tiene esta arquitectura.



Fotos del sitio web de Marcio Kogan.






alguien sabe mas o menos que superficie de terreno y construccion tiene la casa?
gracias!