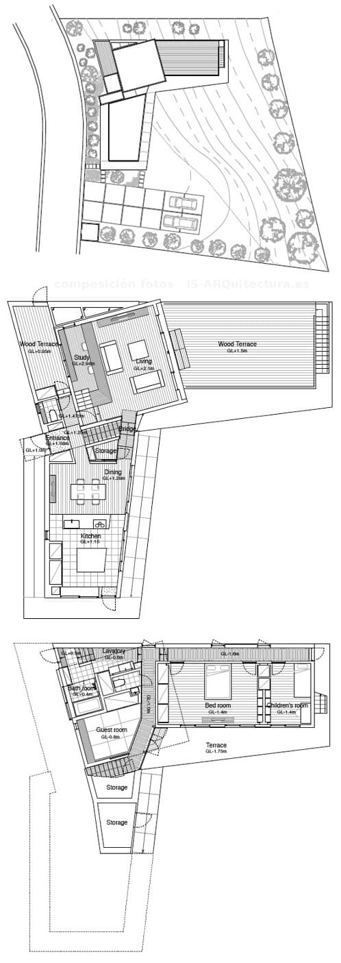
El proyecto de este artículo es una vivienda en ladera. Está construida en la prefectura de Kanagawa (Japón) sobre una colina con hermosas vistas a la ciudad y al mar. Esos fueron motivos importantes a tener en cuenta a la hora de organizar las habitaciones de toda la casa. Hay que tener en cuenta que se accede al sitio desde una carretera que pasa por la parte superior de la parcela. Por eso la vivienda «se inicia» desde arriba, y se va adaptando a la topografía.

Durante la fase de diseño se mandó estudiar detenidamente la selección de qué habitaciones iban a disfrutar de las mejores vistas. Por eso se deja la cocina y el comedor cerca de la entrada, en la planta superior, para permitir que desde el ventanal del salón se disfrute de toda la panorámica y se acceda a la gran terraza, que está justo encima de los dormitorios.

La casa dispone de un intencionado recorrido sinuoso para llegar a la planta de los dormitorios. Hay un estrecho corredor al que dan las puertas de las habitaciones, además de una pasarela que conecta la parte del comedor con el salón. Todo está revestido de madera, de diferentes tipos, tanto en el exterior como en el interior. La parte más baja de la casa queda en voladizo, pareciendo que en este punto «se enfada» con el terreno. Eso le hace perder parte de la armonía que tenía arriba.


La casa Les Aventuriers es un proyecto de Shun Hirayama.





