Esta vivienda está ubicada en una zona residencial dentro del bosque de Os i Østerdalen (Noruega). Se construyó por encargo del artista Gunnar Bloch Røsand, que deseaba una casa de madera. Está construida con vigas y soportes tradicionales de 6 pulgadas, y además conserva el carácter natural del lugar.

En el proyecto de la Gunnar House también existían limitaciones relacionadas con el tamaño de la planta baja. El terreno presentaba una ligera pendiente hacia el sur, y era imprescindible que el edificio interactuara con su entorno.
Finalmente todo se resolvió con una estructura que es bastante sencilla. Se compone de un volumen compacto que tiene cubierta a dos aguas, pero que vuela un poco por la parte frontal y posterior de la casa. Esto ofrece pequeñas terrazas, tanto en la planta baja como en la superior.
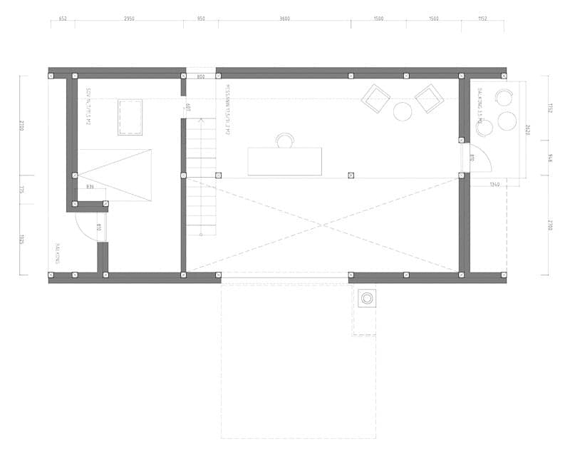
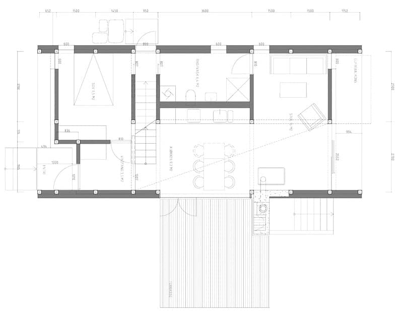
El piso bajo dispone de una sala con forma de L, que también engloba al comedor y la cocina. En este nivel se ha colocado el dormitorio principal y un cuarto de baño completo. En el piso superior hay otro dormitorio, y un estudio que se asoma al hueco en doble altura que hay en el salón. Según algunas fotos del exterior, el tiro de la chimenea, y los planos de planta, se intuye que esta casa de madera posee un sótano, pero no se ha publicado información alguna sobre él.

La organización de la vivienda está condicionada por la estructura de madera. Sigue una cuadrícula con una geometría de 3 x 3 metros, siendo más que suficiente para permitir la disposición de todas y cada una de las habitaciones que necesita su programa. Pero deja un espacio a doble altura en la sala principal.
En relación a sus fachadas, hay que decir que la composición de ventanas tiene muy en cuenta la orientación. Las más grandes se encuentran al sur y al oeste. En el lado este presentan un diseño vertical y estrecho (desde el suelo hasta el techo). Esa disposición permite que desde la habitación principal los árboles se vean completos, desde la base hasta la coronación.
La madera está presente en la mayoría de los acabados, tanto en el exterior como en el interior de la vivienda. La cubierta se ha rematado con una chapa metálica.
El proyecto de esta casa de madera fue realizado por el estudio Huus Og Heim Arkitektur.





