Estas imágenes son de un apartamento dúplex, surgido de la remodelación de un antiguo monasterio de la ciudad italiana de Como. Se adaptó a un uso residencial, manteniendo la forma original del espacio contenedor. Por eso aparecen diferentes alturas, y habitaciones abiertas. El resultado es un loft de dos dormitorios, de estilo minimalista y acabados en corian, madera, y vidrio.
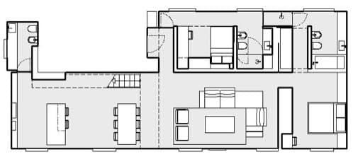
La entrada principal es un hall de pequeñas dimensiones justo antes de acceder a la sala principal, donde los espacios de estar, cocina, comedor y sala, se separan de la habitación principal con un bloque lacado. En el cambio de altura en el techo, un proyector de vídeo se esconde para reproducir imágenes en la pared, justo encima de la cocina. Para permitir que la superficie de proyección sea máxima, los armarios superiores de la cocina están escondidos tras una pared que se desliza hacia abajo con un sistema motorizado.


Uno de los elementos singulares del espacio principal es la escalera, que es una viga de acero sobre la que se montan los peldaños, realizados con una placa de acero en voladizo cubierta de madera.


Materiales y acabados
Para los suelos se utilizó madera de arce canadiense. Pero esa madera no es muy estable con calefacción por suelo radiante. Por eso los tablones del suelo fueron construidos con capas de arce canadiense 2.5mm para la parte superior, y un tablero de partículas en la parte inferior. El ancho de 20 cm de los tableros está modulado para el resto de elementos. Los tablones del piso también se han utilizado para revestir la pared de la habitación principal, que es elegantemente iluminada por una luz superior.

Todos los muros perimetrales y techos ocultan una capa adicional de aislamiento térmico, y los baños están equipados con paneles radiantes en el techo. Las paredes adyacentes a otras viviendas fueron cubiertas con una capa extra, con el fin de dar aislamiento acústico adicional. Para encimeras y lavabos se empleó material corian blanco, así como en el lavadero y baño (bañera, ducha, y partes de las paredes del baño). La casa está totalmente automatizada y es gestionada por un servidor ubicado en el estudio en el segundo nivel. Todo el mobiliario ha sido diseñado, incluyendo la cocina, lavabos, camas, mesa de comedor, escritorios, y bañera.









Este loft minimalista es un magnífico trabajo de JM Architecture.





